From Bare Bones to Beautiful: A Basement Transformation

When Corinthian Fine Homes first stepped into this basement, we were greeted with a blank slate—bare concrete blocks, visible mechanicals, and untapped potential. Though the home itself was less than 20 years old, the basement was completely unfinished and underutilized. But for us, that meant potential. And for this family, it was an opportunity to expand their lifestyle.

“They wanted it to feel like part of the home, an extension of the main floor-not an afterthought,” Designer Kristina explained. “The goal was to create a cohesive, finished space that blended both beauty and function.”

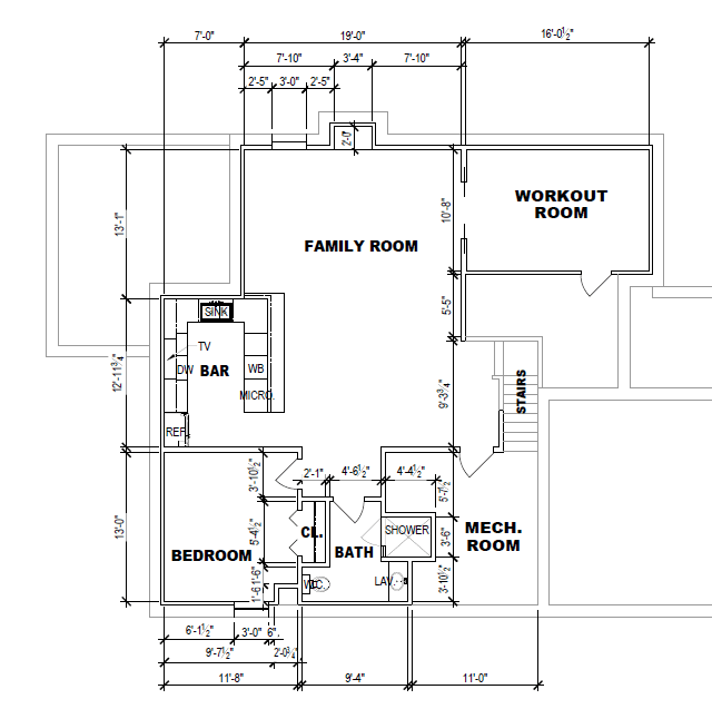
The homeowners had big dreams for the space: a guest bedroom, a full bathroom, an open entertainment zone complete with an entertaining space and bar, and a separate exercise room. With plenty of headroom with 8-foot ceilings and natural light pouring through the windows, the basement was primed for transformation—but it required thoughtful space planning to make it all work.

Creating Flow and Function

One of the first challenges was rethinking the layout. Although the basement had rough plumbing in place for a bathroom, its original layout didn’t support the homeowners’ vision. We carefully reconfigured the floorplan—strategically installing new plumbing for the bar area while preserving the mechanical room and existing elements wherever possible due to the home being relatively new and all the infrastructure was in good shape.

Flow was just as important as function. A door at the top of the basement stairs collided with the garage door, disrupting traffic and making the mud room area more congested than needed. Corinthian Fine Homes replaced it with a clean, cased opening to create a natural, seamless transition from the main floor. The staircase—formerly closed and cramped—was opened up with a removable railing that not only enhances the visual openness but also allows for easier movement of furniture and exercise equipment. All-new stair treads and noise-reducing carpet added warmth and comfort, while extra ceiling insulation in the entire basement reduced sound transfer between levels.

Now A Bar That Wows

At the foot of the stairs, guests now see the crown jewel of the basement: a custom-built bar that combines earthy tones and elevated design. The backsplash is a striking green tile with a hand molded look, adding character and an artisan feel. Sconces mounted to the tile splash wash the wall with light giving a professional restaurant feel. Warm-stained hickory cabinets with glass-front uppers and interior lighting lend a cozy, yet refined aesthetic.

The bar area includes everything the family needs to entertain in style: a full-size refrigerator, dishwasher, microwave, ample storage, sink, and a polished quartzite countertop that’s as durable as it is stunning. Corinthian took advantage of a recess area on the opposite side of the family space to add a bit of closed storage for games or extra blankets and open shelving for display that matches the bar cabinetry.  The homeowners were especially smitten with the tile and the overall look and functionality of the space—so much so that their review of Corinthian Fine Homes was one of the most glowing the team has received.

Comfort Meets Utility

Beyond the bar, we carved out a guest bedroom and full bathroom featuring wide-plank luxury vinyl plank flooring and a custom-tiled shower with an extra-tall showerhead—perfect for visiting friends or family. The exercise room, located off the main living space, features rubber flooring, a wall-mounted TV, and space-saving pocket doors to make moving equipment in and out effortless.

Hidden ductwork, wiring, and mechanicals were tucked neatly into bulkheads, preserving ceiling height while giving the finished space a clean, polished look.

A Basement That Belongs

The basement design leans warm and inviting without feeling disconnected from the main floor. From the artisan tile and rich wood cabinetry to the thoughtful layout and subtle soundproofing, every detail was considered to ensure the basement didn’t feel like a basement at all.

“It feels like it was always part of the home,” Designer Kristina shared. “That was the goal—and I think we nailed it.”

The project is a testament to the power of vision, craftsmanship, and the transformative effect of smart design. With a warm aesthetic, high functionality, and seamless flow from top to bottom, this once-forgotten basement now stands as a fully integrated, beautiful extension of the home—and a shining example of the Corinthian Fine Homes standard.

Indianapolis, Indiana

Designer: Kristina Miller